Volksschule Markersdorf
Projekt: Um- und Zubau Volksschule
Ort: A-3385 Markersdorf-Haindorf
Planung: ab 2018 in ARGE mit Arch. Sonja Blab
Ausführung: 2021-2022
Auftraggeber: öffentlich
Nutzfläche: 3.100m²
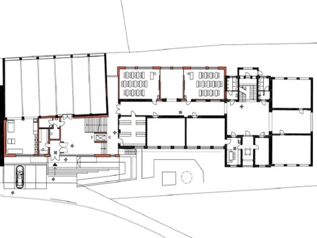
Die Volksschule Markersdorf-Haindorf sieht sich wie viele heimische Schulen mit einem stetig steigenden Raumbedarf aufgrund zeitgemäßer Unterrichts- und Betreuungsformen konfrontiert. Darüber hinaus weist das bestehende, aus den 1950er Jahren stammende und in den 80ern erweiterte Schulgebäude diverse Mängel, allen voran eine heutigen Standards nicht genügende Erschließung auf. So gilt es, dem Raumfehlbestand und der unzureichenden Barrierefreiheit durch einen Zubau und die gänzliche Umstrukturierung der Erschließung Abhilfe zu schaffen. Im Zusammenhang mit den Baumaßnahmen soll gleichzeitig der Bestand in seiner Funktion optimiert werden. Vorgesehen sind im Einzelnen der Abriss des bestehenden Turnsaaleingangs samt Nebenräumen, die Neuerrichtung eines großzügigen Gebäudezugangs, eines mit Aufzug ausgestatteten Erschließungskernes, der Zubau eines zusätzlichen, gartenseitigen Klassentraktes sowie die Aufwertung der Untergeschoßzone durch gezielte Maßnahmen.
Fotos: Romana Fürnkranz Drohnenfotos: Christoph Bertos
