Schulmuseum Maria Taferl
Projekt: Ausstellungsgestaltung
Ort: A-3672 Maria Taferl
Planung: 2002
Ausführung: 2002-2003
Auftraggeber: Gemeinde Maria Taferl
Nutzfläche: 115m²
Eine anstehende Sanierung der alten Volksschule erzeugte den Bedarf, das ehemals darin untergebrachte Schulmuseum Maria Taferl an einem neuen Standort anzusiedeln.
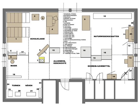
Ausgewählt wurde das frisch ausgebaute, leer stehende Dachgeschoß des Gemeindeamts. Aufgrund des geringeren Platzangebots stand eine Neukonzeption der Ausstellung an.
Um Schäden am nagelneuen Parkettboden zu vermeiden bzw. eine etwaige anderweitige Nachnutzung des Raumes zu ermöglichen, wurde ein flexibles System, bestehend aus Hängepaneelen und Standpodesten entwickelt. In weitest gehender Eigenleistung wurden Holzmehrschichtplatten in einheitlichen Größen mit standardisiertem Lochraster hergestellt. Entsprechend den Erfordernissen wurden die Paneele von deckenseitigen Laufschienen abgehängt und mit Schautafeln oder kleinen Vitrinen bestückt.
Weit über die bautechnische Facette hinausgehend musste ein inhaltliches Konzept entwickelt werden. Sämtliche aus früheren Zeiten stammende Raumtexte wurden neu verfasst und ergänzt. Die Zahl der Ausstellungsexponate wurde auf ein repräsentatives Maß reduziert.
Wegen akuter Platznot musste das Schulmuseum jedoch zwischenzeitlich einer neuen Nutzung weichen.
