Pfarrzentrum Langenrohr
Projekt: Pfarrgemeindezentrum, Neubau
Ort: A-3442 Langenrohr
Planung: 2012-2013
Ausführung: 2013-2014
Auftraggeber: R.K. Pfarrkirche Langenrohr
Nutzfläche: 518 m²
Aufgrund des abbruchreifen Zustands der zuvor als Veranstaltungsbereich genutzten alten Volksschule wurde die Neuerrichtung eines Pfarrzentrums beschlossen.
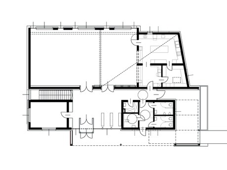
Gefordert war die Errichtung eines Mehrzwecksaals für 120 Personen, einer Küche mit ausreichender Kapazität für größere Veranstaltungen, einer Pfarrkanzlei, einem Gästezimmer sowie von barrierefrei zugänglichen Sanitärräumen.
Das Gebäude antwortet in seiner Positionierung auf den benachbarten barocken Kirchenbau und den bestehenden Vorplatz. Entwurfsbestimmend waren vor allem die geforderte Funktion sowie der erklärte Wunsch der Bauherren nach traditioneller, dem Ort angepasster Architektur. Konzipiert wurde ein langgestreckter dreischiffiger Baukörper mit höhenversetztem Satteldach, der in der Gesamtkubatur die ebenerdige, für das Tullnerfeld typische Bauweise aufnimmt. Die Gestaltungselemente wurden zurückhaltend, jedoch bewusst modern ausformuliert.
Entlang der zur Kirche zugewandten Fassade wurde ein großzügiges Vordach als nutzungsorientierte Interpretation des altertümlichen Kreuzganges vorgesehen.
Das Pfarrzentrum wurde im Herbst 2014 fertiggestellt.
