Pfarrhof HAU
Projekt: Revitalisierung, Sanierung
Ort: A-3384 Haunoldstein
Planung: 2014-2015
Ausführung: 2016-2017
Auftraggeber: R.-K. Pfarrkirche
Nutzfläche: ca. 250m²
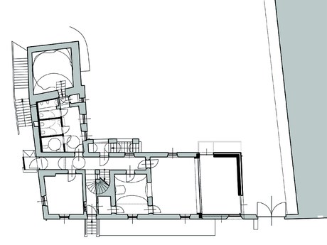
Der bestehende, z. T. einige Jahrhunderte alte Pfarrhof soll revitalisiert werden. Ein wesentlicher Faktor ist dabei die Schaffung eines multifunktional nutzbaren Raumes, der in den alten Gemäuern keinen Platz findet. Daher wird in Verbindung mit einer Generalsanierung ein Zubau geschaffen, der in Zukunft der wachsenden Gemeinde Raum für Aktivitäten verschiedenster Art bieten soll.
Im Entwurf wurde bewusst vermieden, die historisch wertvolle, aber eben nicht reproduzierbare Architektur zu kopieren. Lediglich die Pultdachform ist ein Zitat eines vorhandenen Stiegenzubaus.
Durch große Verglasungen entsteht ein wesentlich stärkerer Bezug zum reizvollen Außenraum, als das jemals mit alten, in dicke Mauern eingebettete Fenster, möglich wäre. Die im Pfarrgarten vorhandenen Natursteinmauern dienten als Inspiration für die Gestaltung der Außenwände in Form eines graubraunen, grob strukturierten Putzes. Der Pfarrhof ist ein gelungenes Beispiel, wie sich der Reiz alter Gemäuer mit moderner Architektur vereinen lässt.
Die Baumaßnahmen wurden von Frühjahr 2016 bis Sommer 2017 umgesetzt.
