Sie sind hier: Startseite / Projekte / Realisiert / Haus EISBERG
Haus EISBERG

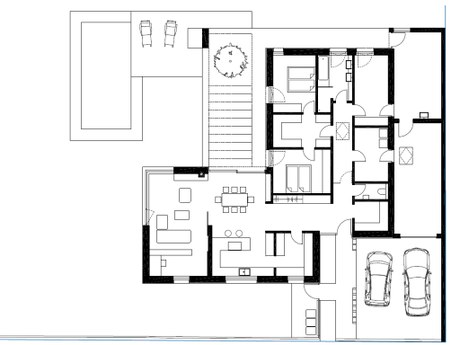
Haus EISBERG

Projekt: Einfamilienhaus, Neubau
Ort: A-3100 St.Pölten
Planung: 2020
Ausführung: 2021-2022
Auftraggeber: privat
Wohnnutzfläche: 160m²

Zurück
Haus EISBERG Haus EISBERG Haus EISBERG Haus EISBERG Haus EISBERG Haus EISBERG Haus EISBERG Haus EISBERG Haus EISBERG Haus EISBERG