Haus 6 Haus
Projekt: Einfamilienhaus, Umbau, Sanierung
Ort: A-3390 Melk
Planung: 2013
Ausführung: 2014-2015
Auftraggeber: privat
Nutzfläche: 151m²
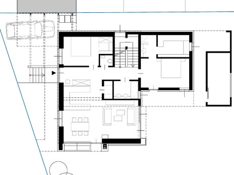
Vor einigen Jahren wurde von den Bauherren ein kleines aus dem frühen 20. Jahrhundert stammendes Haus erworben mit der ursprünglichen Absicht, einer mittlerweile leider verstorbenen Verwandten aus Australien einen Alterssitz zu schaffen. Das bescheidene Gebäude zählt zu den ältesten in dem als Sechshaus bezeichneten Teil der Melker Innenstadt.
Die in die Jahre gekommene, zum Teil stark baufällige Bausubstanz wurde generalsaniert und um einen Zubau erweitert. Das vorhandene Walmdach wurde abgetragen und in Form eines 90° gedrehten Satteldachs neu errichtet. Der ländlich anmutende Charakter des L-förmigen Baukörpers mit hölzernem Nebengebäude wurde in moderner Architektursprache neu interpretiert. Die Verschränkung zwischen Alt und Neu sollte am umgebauten Haus ablesbar bleiben. Die kleinteilige für die Zeit um 1900 typische Struktur im Inneren wurde zugunsten einer offenen, hellen Wohnatmosphäre stark abgewandelt.
Der Heizwärmebedarf konnte durch die Sanierungsmaßnahmen um etwa 70% gesenkt werden.
Das Gebäude wurde im Frühjahr 2015 fertiggestellt.
