Haus BAS
Projekt: Passivhaus, Neubau
Ort: A-3644 Emmersdorf
Planung: 2013-2014
Ausführung: 2014-2015
Auftraggeber: privat
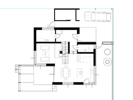
Nutzfläche: 154m²
Der Wunsch junger Familien ist nicht selten ein Ähnlicher: Raus aus den engen dunklen Wänden einer Mietwohnung in ein modern gestaltetes, helles Haus mit Garten, wenn möglich in Passivhausbauweise.
Im Weg stehen dieser Sehnsucht ebenso häufig budgetäre Grenzen. Vorrangiges Ziel der Planung ist es daher immer wieder, flächensparende Raumanordnungen zu finden und dabei trotzdem einen architektonischen Mehrwert zu schaffen.
Im Falle des Einfamilienhauses in Emmersdorf gelang es, das gesamte für eine vierköpfige Familie, einen Heimarbeitsplatz, eine Sauna und die Haustechnik erforderliche Raumprogramm auf 154m² unterzubringen. Besonderes Wohnflair verleiht unter anderem der in der Mitte des Hauses angeordnete Kachelofen mit einer darüber liegenden Galerie.
Das Haus wurde Ende 2015 fertiggestellt.
