Sie sind hier: Startseite / Projekte / Entwurf / Haus SBH
Haus SBH

Haus SBH

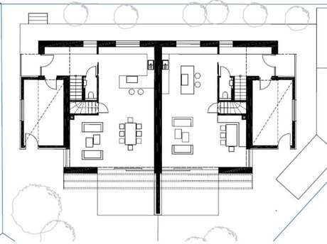
Projekt: Doppelhaus, Neubau
Ort: A-3390 Melk
Planung: 2022
Ausführung: 2023
Auftraggeber: privat
Nutzfläche: á 133m²

 

Zurück
Haus SBH Haus SBH Haus SBH Haus SBH Haus SBH