Haus NLGB
Projekt: Einfamilienhaus, Umbau, Sanierung
Ort: A-3040 Neulengbach
Planung: 2015
Ausführung: 2016
Auftraggeber: privat
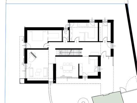
Nutzfläche: 195m²
Altbestand birgt Überraschungen!
Eine junge Familie mit Wunsch, die zunehmend enge Wohnung zu verlassen, verschaut sich in ein ausgedientes Bauernhaus am Rande der Stadt. Der zweifelhafte Charme des aneinander gestückelten, unzählige Male umgebauten Hauses verwandelt sich bald in enttäuschende Gewissheit, dass der Bestand kaum sinnvoll zu verwerten ist. Nach hartem Ringen wird die Entscheidung zu einem Totalabriss und Neubau getroffen.
Konzipiert wird ein kompaktes Haus, das die Qualitäten des Ortes in Szene setzt und in Details an das früher vorgefundene Ensemble erinnern soll. Die Gebäudeform mutet fast traditionell an, wäre da nicht die eigenwillige Form des asymmetrischen Satteldachs.
