Haus MDL
Projekt: Einfamilienhaus, Umbau, Sanierung
Ort: A-3105 Unterradlberg
Planung: 2013
Ausführung: ab 2015
Auftraggeber: privat
Nutzfläche: 270m²
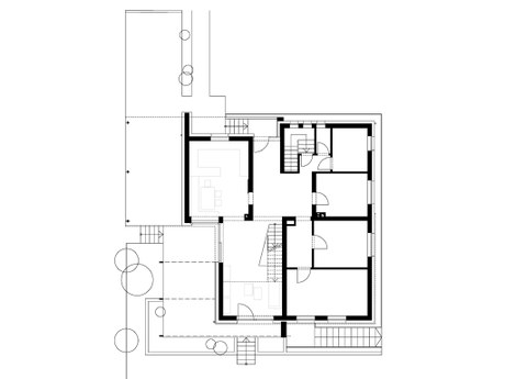
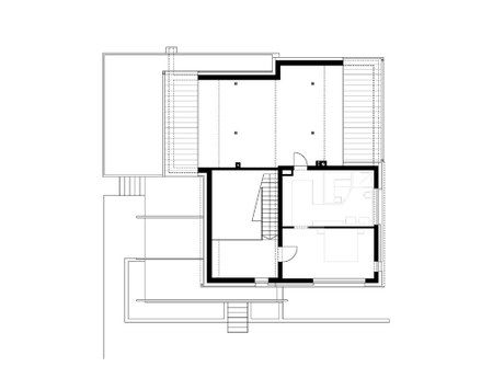
Ein vom Großvater hinterlassenes in den 1970er Jahren errichtetes Haus wird generalsaniert und heutigen Wohnbedürfnissen entsprechend adaptiert.
Zentraler Entwurfsgedanke war, den vorhandenen Wohnraum durch die punktuelle Entfernung der Erdgeschoßdecke aufzuwerten und Tageslicht in den Raum zu lassen. Entgegen die ursprüngliche Absicht der Bauherren, den Wohnraum im Erdgeschoß zu erweitern, wurde ein teilweiser Dachgeschoßausbau konzipiert. Durch den dadurch entstehenden kompakten Baukörper sowie eine thermische Sanierung kann die zu erwartende Energiekennzahl um ca. 80% gesenkt werden. Das Haus wird ergänzend zu einem konventionellen Heizsystem mit kontrollierter Wohnraumlüftung ausgestattet.
