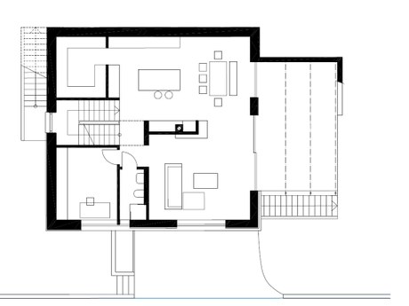
Haus IN
Projekt: Einfamilienhaus, Neubau
Ort: A-3390 Melk
Planung: 2020
Ausführung: 2021
Auftraggeber: privat
Wohnnutzfläche: 240m²
Projekt: Einfamilienhaus, Neubau
Ort: A-3390 Melk
Planung: 2020
Ausführung: 2021
Auftraggeber: privat
Wohnnutzfläche: 240m²