HAUS ZIM
Projekt: Einfamilienhaus, Neubau
Ort: A-3671 Marbach a.d. Donau
Planung: 2023
Ausführung: 2023-25
Auftraggeber: privat
Nutzfläche: 100m²
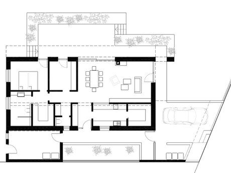
Schon lange hegten die Bauherren den Wunsch, irgendwann im Leben ein eigenes Haus zu errichten. Ziel war, ein möglichst kompaktes, für zwei Personen ausreichend Platz bietendes Haus zu entwerfen. Von Beginn an stand sehr klar im Fokus, ein optimales Verhältnis zwischen vorgegebenem Baubudget und einer architektonisch ansprechenden Lösung zu finden. Dies konnte erreicht werden durch eine kluge, funktional optimierte Planung, hohen Eigenleistungsanteil, aber auch eine sehr offene, wertschätzende Kommunikation zwischen Bauherr und Architekt.
