HAUS M
Projekt: Einfamilienhaus, Um- & Zubau
Ort: A-3390 Melk
Planung: 2023
Ausführung: 2024-25
Auftraggeber: privat
Wohnnutzfläche: 144m²
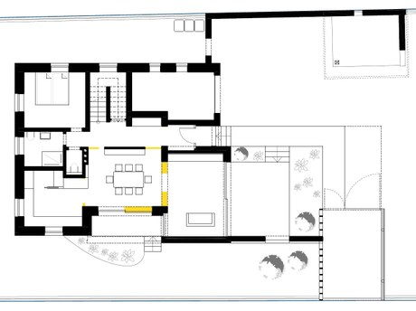
Ein aus den frühen 1950er Jahren stammendes Einfamilienhaus sollte grundlegend saniert und den Bedürfnissen der künftigen Bewohner angepasst werden. Neben dem teilweisen Umbau und der weitestgehenden Sanierung der vorhandenen Bausubstanz wurden ein Zubau mit offenem Wohnbereich, eine großzügige Terrasse Richtung Garten sowie eine Carportüberdachung errichtet. Abschließend wurden die Außenanlagen größtenteils neu hergestellt. Die durch einen Gartengestalter ausgewählte Begrünung verleiht dem Haus den letzten Schliff!
